Loading gif
Denne ejendom er solgt

Fantastisk indflytnings klar 3 soveværelses villa med egen pøl på Las Colinas Golf Resort

Orihuela, Las Colinas Golf and Country Club

750,000 EUR / 5,625,000 DKK

Beskrivelse

Super lækker NØGLEKLAR 3 soveværelses halvt dobbelt villa på Las Colinas Golf Resort. En af de bedste i Spanien. Resortet har: 3 restauranter, supermarked, hæveautomat, golfbutik, golfakademi, tennis- og paddle tennis akademi samt en sports- og fitnessklub.

Villaen er bygget af en bygherre som er kendt for at bygge i virkelig god kvalitet og bruge materialer af høj kvalitet.

Pæn stor grund med parkering til 2 biler. Fin flise belagt gangsti til hovedindgangen.

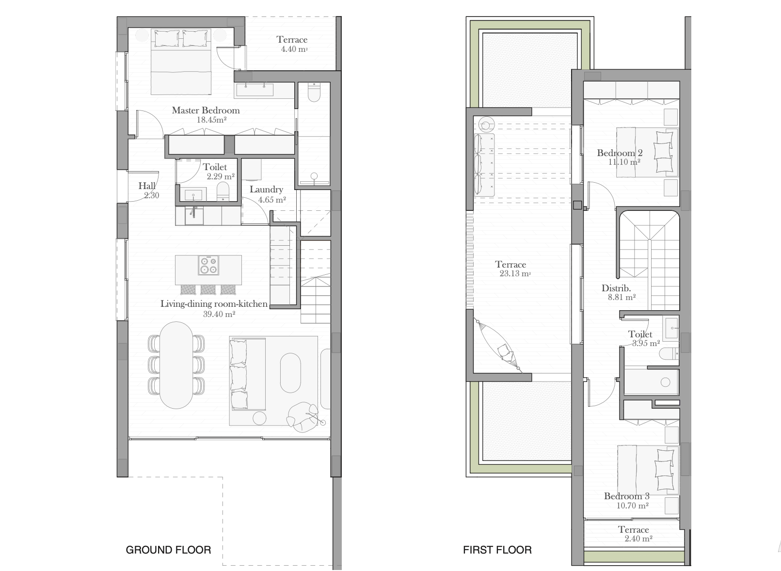
Fra gangen går man ind i den store stue med åbent køkken. Udover morgenmadsbaren er der god plads til både sofa og spiseafdeling. Der er et stort glasområde til poolen og på siden som har adgang fra køkkenet til sommerkøkken terrassen og pool området. Samlet terrasseareal i stueetagen er 97 m2.

Køkkenet kommer med alt i hårdehvidevarer.

Stueetagen har også soveværelset med eget badeværelse og skydedøre i glas til en privat terrasse. Soveværelset har også en lang væg med 2 indbyggede garderobe skabe i god størrelse.

Denne etage har også et gæstetoilet, vaskerum (til vaskemaskine/tørretumbler - opbevaring osv.).

I stuen er der trappe til 1. sal.

Første sal har de 2 andre soveværelser og det 2. badeværelse. Begge har indbyggede skabe og adgang til terrasserne. Et til egen terrasse og et direkte til den 23 m2 terrace som også har adgang fra gangen.

Villaen har centralt aircondition til køling og opvarmning.

Badeværelserne har gulvvarme.

Resumé:

* Fantastisk beliggenhed på velkendt luksus golf resort.
* Vestvendt.
* God størrelse lang pool.
* Udendørs køkken
* 3 soveværelser. Alle med indbyggede skabe og direkte adgang til terrasser.
* "Master" soveværelse med eget badeværelse og privat terrasse.
* Alle hårdehvidevarer er inkluderet.
* Gulvvarme i badeværelset.
* Central aircondition til køling og opvarmning.
* Træ pergola.

Lidt om hvad der er i det omkringliggende område:

* 5 andre 18-hullers golfbaner inden for 5-15 minutters kørsel.
* 4 internationale skoler.
* Strande 10 minutters kørsel.
* Stort indkøbscenter ca. 15 minutters kørsel.
* Lufthavne, Murcia 40 min., Alicante 50 min..

Hvis du har spørgsmål eller ønsker at se villaen, resortet og det omkringliggende område, er du velkommen til at kontakte os. Du er velkommen til at kontakte områdemægler Steen på +34 621 208 832 (også WhatsApp).

detaljer

  • Reference icon
    Sags nummer
    3265-04579
  • Bedrooms icon
    3 soveværelser
  • Bathroom Icon
    2 badeværelser
  • Area Icon
    Boligens størrelse
    135.00 M2
  • Orieneation Icon
    vest
  • Age Icon
    Bygget år
    2025

Ekstra funktioner

  • PRIVAT PARKERING
  • PRIVAT SWIMMINGPOOL
  • PRIVAT HAVE

Placeringsoplysninger

  • Adresse: Lima
  • By: Orihuela
  • Kvarter: Orihuela
  • Postal code: 03189
  • Land: Spain

Plantegning

  • Plantegning 1

Forespørg om denne ejendom

EJENDOMS MÆGLEREN

Steen from Boisol
  • Steen
Jeg har læst og accepterer Persondata politik
Ja tilmeld mig for at blive inkluderet i nyhedsbrevet
BOISOL er en del af QHCC-gruppen QHCC square logo
Velkommen til BO I SOL
Har du et spørgsmål?
Kontakt os via whatsapp
Steen from boisol Rupert from boisol Start en samtale